6 Teck Whye Avenue - 2 Units for Rent
Map View
We’ve shown you all the matches
Almost there!
Refining your recommendations.
This may take a few seconds...
6 Teck Whye Avenue
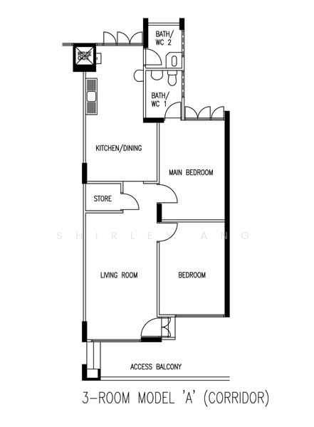
6 Teck Whye Avenue 680006(D23) Dairy Farm / Bukit Panjang / Choa Chu Kang
Summary
6 Teck Whye Avenue
Read more
Project details
TypeHDB
PriceS$ 2.6K - 3.6K
Completion year1983
Tenure99-year Leasehold
No. of blocks1
No. of floors12
DeveloperHousing & Development Board (HDB)



















